引用引用第86樓何舞汽于2012-05-31 16:09發表的 :參加考試的時候題目是這樣的:用兩個接觸器和4個按鈕實現兩臺電機既能實現先后啟動和停止,也能實現同時啟動和停止。本人不才,畫了幾天也沒能實現上述要求,特在此請教高手指教。雖然考試已經結束,但是這個題目一直困擾著我。如芒在背。煩請各位高手指教。接觸器是3組主觸點,2組常開觸點,2組常閉觸點那種。按鈕式1組常開,1組常閉那種。4個獨立的按鈕。其實出該題目的人也可以說是瞎搞,什么題不出,出這種沒多大現實意義的題。樓主,不就一道題嗎,用得著那么較真呼?很多出題者其實際能力可能遠不如我們,沒必要對此等破玩意兒太過在意!
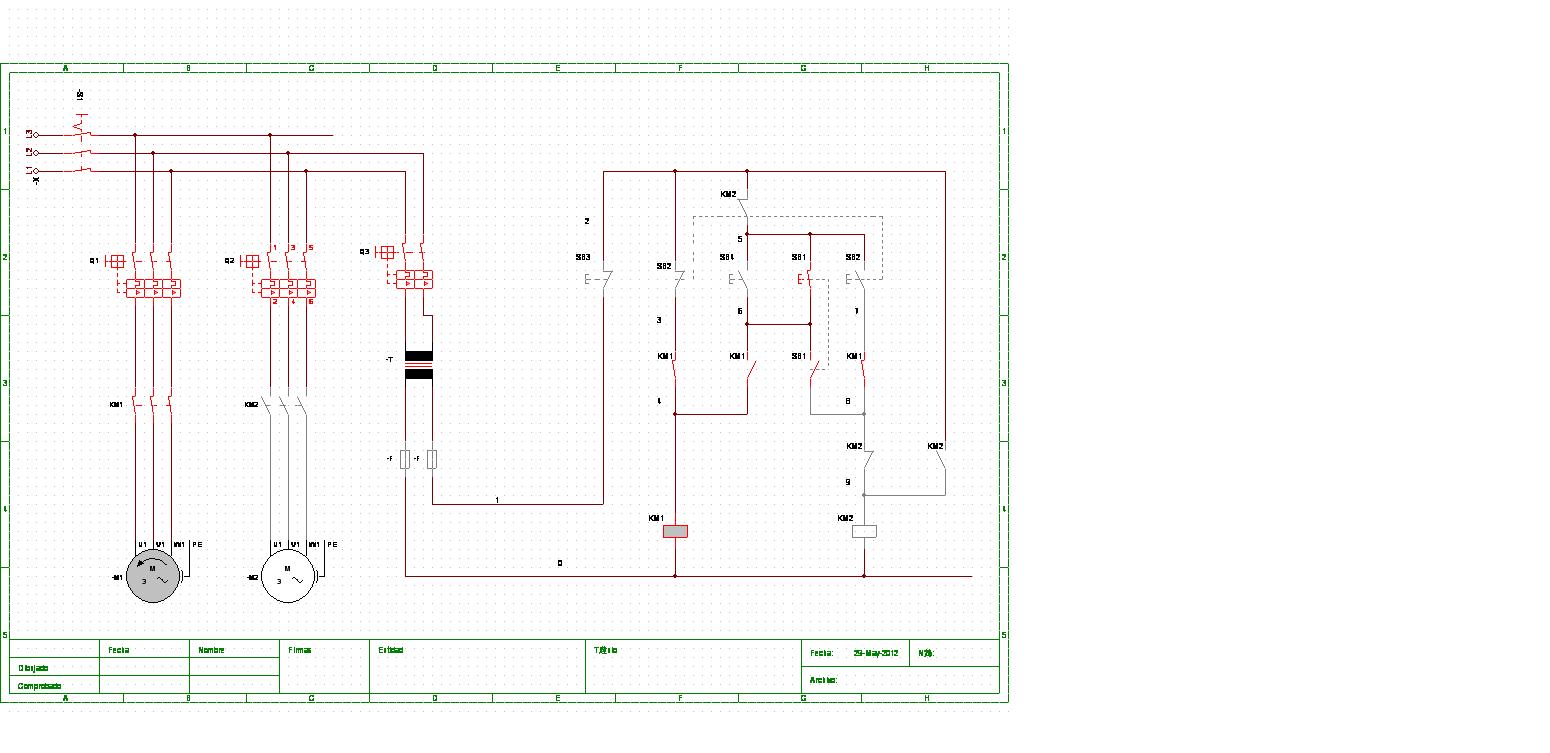
引用引用第88樓hds1990于2012-05-31 18:35發表的 :[attachment=85314] 我不是電工,業余畫畫。今天抽時間整理下昨天的圖紙,規范下,不當之處請多拍磚,這是道值得動腦筋的基礎題,正好學習下電工知識。工作過程:1.按下SB1,KM1啟動并自鎖,實現先啟動電機M1;然后可以按下SB4啟動KM2并自鎖,實現后啟動電機M2。按下SB2停止電機M1,實現先停止;再按下SB3停止電機M2,實現后停止。2.單獨按下SB4,同時啟動KM1和KM2實現電機M1和電機M2同時啟動并自鎖,按下SB3同時停止電機M1和電機M2。.......
引用引用第91樓格林于2012-05-31 21:31發表的 :按下SB1,KM1根本不能自鎖。不停的抖動。
引用引用第93樓qrklove于2012-05-31 21:36發表的 :你還真的用接觸器試驗啊,理論上這圖可以,用PLC實驗也可以,但用接觸器就不行了,用PLC的詞來說,掃描周期太短
引用引用第95樓格林于2012-05-31 21:48發表的 :你只是用軟件模擬了一下,我確信接觸器會抖動。
主辦單位:上海明控機電科技有限公司
本站所有內容均為網友自行發布,不代表網站立場,如有爭議請與管理員聯系
工控人家園是公益論壇,不銷售任何資料軟件,不銷售會員和積分
刪貼、投訴電話:13816792706
遵守法律,文明發言 滬ICP備10210768號-2 滬公網安備31010802001143號